Material: Hairline stainless steel (optional)
Door opening method: Three-fold split style
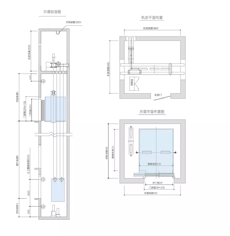
Civil engineering schematic diagram of the machine room freight elevator (2:1)


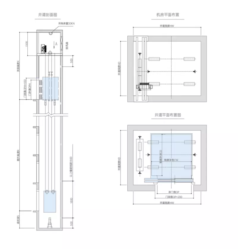
Civil engineering schematic diagram of the machine room freight elevator (4:1)


Civil engineering schematic diagram of the machine-room-less freight elevator (4:1)


Civil engineering schematic diagram of large-tonnage freight elevator (4:1)


Civil engineering drawing of the service elevator
