Material: Powder-coated board (standard configuration)
Door opening method: Side opening type
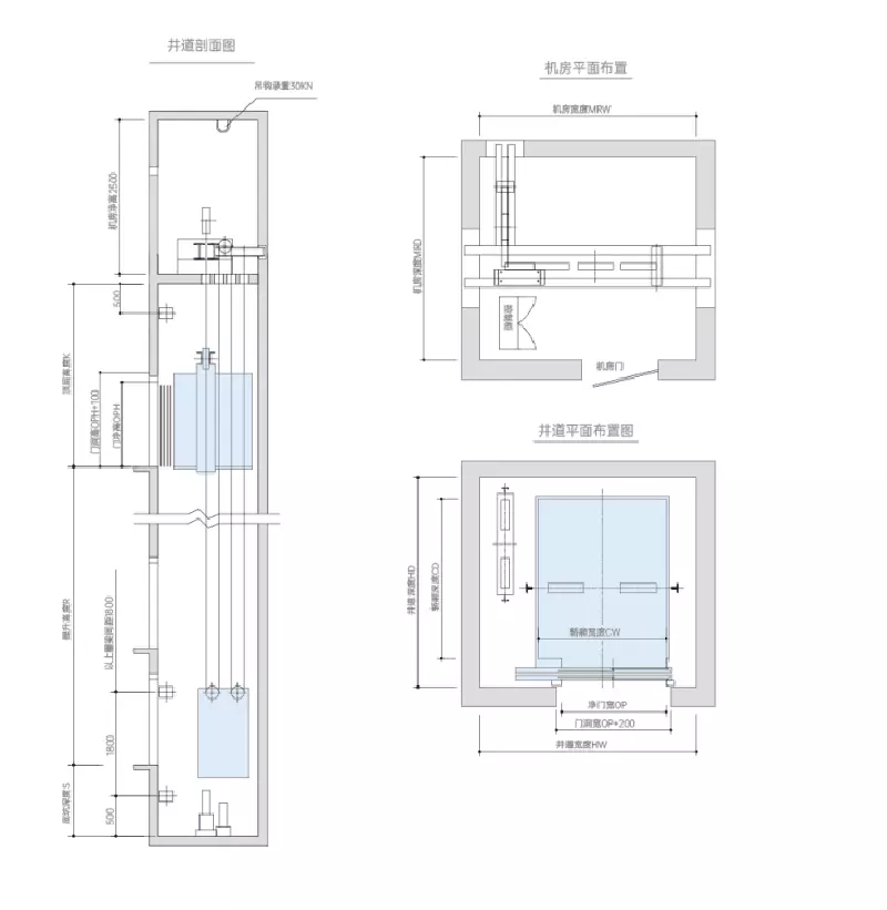
Civil engineering schematic diagram of the machine room freight elevator (2:1)


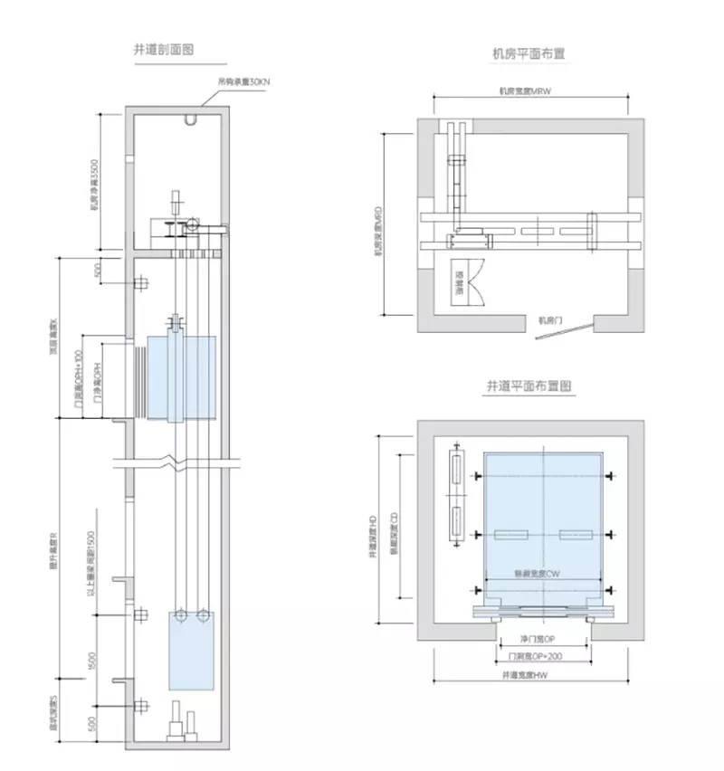
Civil engineering schematic diagram of the machine room freight elevator (4:1)


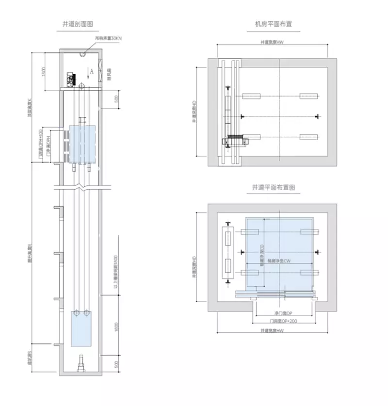
Civil engineering schematic diagram of the machine-room-less freight elevator (4:1)


Civil engineering schematic diagram of large-tonnage freight elevator (4:1)


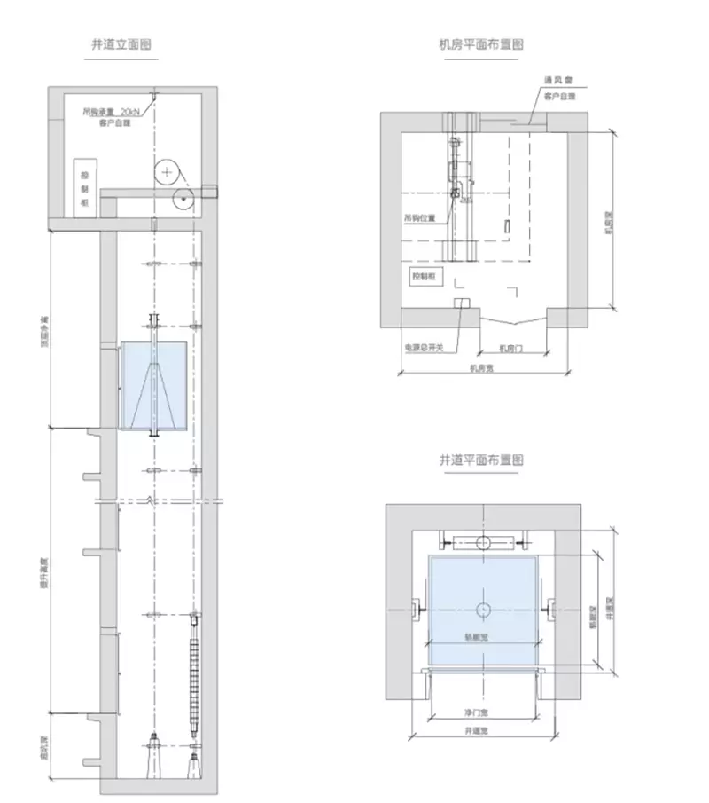
Civil engineering drawing of the service elevator

