Ceiling: Hairline stainless steel, LED lighting
Ventilation: Axial flow fan
Sedan chair door: Hair-patterned stainless steel
The car wall: Hair-textured stainless steel, mirror-finished stainless steel
Handrail: Stainless steel flat handrail
Flooring: PVC
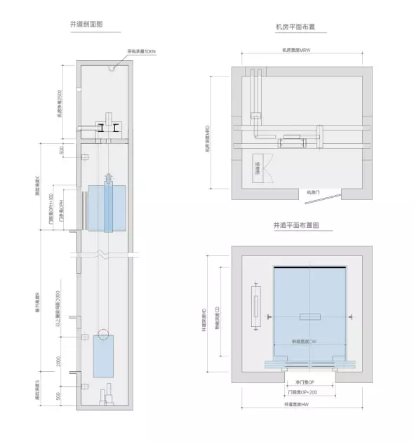
Civil engineering schematic diagram of passenger elevator

